ตอนที่ดูแบบบ้านตอนแรกคิดว่าชายคาจะวิ่งชนกันพอที่จะเอารางน้ำฝนไปรับได้ครับ แต่พอมุงหลังคาเสร็จแล้วตกใจจะแก้ไขยังไงดีถ้าฝนตกมาแรงๆ สาดเข้ามาในบ้านโดนฝ้าเป็นธาราสวรรค์แน่นอนครับ ใครพอมีไอเดียแนะนำผมหน่อยเถิดครับตอนนี้อยู่ในขั้นตอนตามรูปภาพครับ และไม่รู้ว่าตะเฆ้ 2 ตัวช่างมุงหลังคาวางแบบนี้ถูกต้องหรือเปล่า …

By: delta_V
Since: 27 ส.ค. 55 21:30:16
ตรงนี้ด้านในครับช่องหน้าต่างที่น้ำสาดเข้ามา
By: delta_V
Since: 27 ส.ค. 55 21:31:26
แนวใต้หลังคาครับตะเฆ้ 2 ตัววิ่งเล่นบนน้ำครับ
By: delta_V
Since: 27 ส.ค. 55 21:34:46
ถ้าดูจากรูปแรก ปลายหลังคาซ้ายขวามันควรวิ่งลงมาจบเท่าแนวหลังคาตัวกลาง
ถ้าแบบก่อสร้างมันไม่ได้เป็นแบบในรูปนะ แต่มันแล้วแต่ดีไซน์ มันก็สามารถเป็นแบบในรูปได้
ถ้าให้แก้ไขตอนนี้ที่คิดออกทำได้ 2 อย่าง
1.ถ้าทำผิดแบบให้ช่างรื้อทำใหม่(ผรม.จ่าย) ถ้าถูกแบบแล้วเราก็เป็นคนจ่าย
2.ให้ช่างรื้อเชิงชายออก เชื่อมโครงเหล็กต่อออกมาเป็นโครงรับรางน้ำขนาดใหญ่
คอนเซปเดียวกับเรือนภาคเหนือ แต่ควรหาคนคำนวนให้นิดนึงครับเนื่องจากพื้นที่รับน้ำค่อนข้างใหญ่ และรับน้ำจากหลังคาสองผืน
By: I believe I can fly
Since: 27 ส.ค. 55 23:11:50
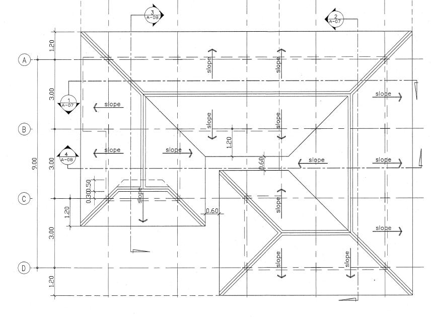
แบบหลังคาเป็นแบบนี้ครับ
By: delta_V
Since: 28 ส.ค. 55 07:26:23
ลองดูลิงค์นี้ครับ คล้ายๆกันครับ แต่ของ จขกท. ดูจะซับซ้อนกว่านิดนึง
http://topicstock.pantip.com/home/topicstock/2012/06/R12298675/R12298675.html
By: hyenahahey
Since: 28 ส.ค. 55 10:25:24
บ้านของ จขกท.ใช้เหล็กแบบเคลือบกัลวาไนซ์ ซึ่งหากต้องเชื่อม ต้องใช้ช่างที่มีฝีมือมากเพราะเหล็กหนาสุดแค่ 1.0 mm อาจทำให้เหล็กทะลุได้
หากให้แนะนำ จขกท. ควรติดรางน้ำเพิ่มจะดีกว่าค่ะ แต่รายละเอียดว่าจะติดอย่างไรแนะนำให้ปรึกษาเซลล์ของบริษัทโครงหลังคาที่เลือกใช้ แต่ค่อนข้างลำบากพอสมควร เนื่องจากมุงหลังคาและติดเชิงชายเรียบร้อยแล้ว แต่ยังดีกว่าติดฝ้าไปแล้ว ดังนั้นอาจมีค่าใช้จ่ายเพิ่มแต่ขึ้นอยู่กับการเจรจาหากมีเหล็กหน้างานเหลือ น่าจะจ่ายแค่ค่าแรง
** ทั้งหมดเป็นความเห็นจากประสบการณ์ส่วนตัวนะคะ เป็นแนวทางเฉยๆ อาจไม่ถูกทั้งหมดก็ต้องขอโทษด้วยค่ะ
By: pretty_paw
Since: 29 ส.ค. 55 00:14:47